Wohn- und Geschäftsgebäude in Ebensfeld!
Beschreibung:
RE/MAX COBURG präsentiert: "Wohnen, Arbeiten & Vermieten – alles auf einem weitläufigen Grundstück mit über 3.600 m² Fläche!"Hier erwerben Sie einen Bungalow, ein Mehrfamilienhaus sowie einen Anbau mit Lagerräumen und der Möglichkeit für weiteren Ausbau für z. B. weitere Wohnungen.
Das Ensemble in Ebensfeld vereint ein charmantes Einfamilienhaus mit moderner Ausstattung, drei laufende Ferienwohnungen, Werkstatt- und Büroräume sowie eine effiziente Zentralheizung und PV-Anlage. Ob als Mehrgenerationenwohnen, Gewerbestandort oder Investment mit Potenzial – hier eröffnen sich vielfältige Möglichkeiten.
Lagebeschreibung:
Willkommen in Oberfranken:Ebensfeld liegt im oberfränkischen Landkreis Lichtenfels und überzeugt durch seine zentrale Lage im bayerischen Dreieck zwischen Bamberg, Coburg und Bayreuth. Die Nähe zur Autobahn A73 sowie zur Bahnlinie Nürnberg–Suhl garantiert eine hervorragende Anbindung in alle Richtungen. Die Region profitiert von hoher Lebensqualität, mittelständischer Wirtschaftskraft und wächst kontinuierlich – sowohl für Eigennutzer als auch für Kapitalanleger ein attraktiver Standort.
Mikrolage:
Das Anwesen befindet sich in ruhiger, gewachsener Wohnlage Mitten in Ebensfeld, in der Alten Bahnhofstraße. Umgeben von Einfamilienhäusern und ehemaligen Gewerbeeinheiten bietet das Grundstück viel Privatsphäre bei gleichzeitig guter Erreichbarkeit. Einkaufsmöglichkeiten, Schulen, Kindergarten, Ärzte und Bahnhof sind fußläufig oder in wenigen Fahrminuten erreichbar. Die naturnahe Umgebung lädt zu Spaziergängen und Freizeitaktivitäten ein.
Ausstattung:
Energieausweis:
- A+
- A
- B
- C
- D
- E
- F
- G
- H
- Baujahr:
- 1989
- Endenergieverbrauch:
- 107,4 kWh/(m²a)
- Energieausweis:
- Verbrauchsausweis
- Energieeffizienzklasse:
- D
- Energieausweis gültig bis:
- 07.07.2035
- wesentlicher Energieträger:
- Pelletheizung
- Baujahr lt. Energieausweis:
- 1989
Ausstattungsbeschreibung:
1) WOHNHAUS | Solide Substanz trifft auf moderne AusstattungGebäudedaten
* Baujahr: 1989 | Erworben: 2014
* Wohnfläche: ca. 120 m²
* Grundstücksanteil: Anteil an 3.600 m² Gesamtfläche
* Bauweise: Massivbau
* Energieausweis: Verbrauchsausweis, gültig bis 07.07.2035, Energieklasse D – Verbrauch 107,9 kWh/m²a
Aufteilung & Ausstattung im Überblick:
* Das gepflegte Einfamilienhaus bietet eine durchdachte Raumaufteilung mit insgesamt rund 120 m² Wohnfläche:
* Überdachter Eingangsbereich
* Großzügige moderne, offene Küche und Essbereich
* Wohnzimmer mit direktem Zugang zu einem Ankleidezimmer
* 1 Schlafzimmer mit Ankleidezimmer
* Hauptbadezimmer mit begehbarer Dusche, Doppelwaschbecken, WC
* Gäste-WC mit Waschmaschinenanschluss, Pissoir (2023 vollständig modernisiert)
* Abstell-/Technikraum (von außen begehbar, ca. 23 m², evtl. als Erweiterung der Wohnfläche nutzbar)
Ausstattungshighlights:
* Heizung: Zentrale Pelletheizung (19 kWp), gemeinsames Heizsystem mit rechter Gebäudeseite (Bauabschnitte 1 & 2)
* Fenster: Zweifach verglaste Kunststofffenster (teilweise erneuert), Rollläden vereinzelt vorhanden
* Bodenbeläge: Durchgehend gefliest, Bäder mit teils modernem Vinylboden
* Decke: ca. 2,40 m Raumhöhe
* Dach: Ursprungszustand, dennoch in einwandfreiem Zustand (1989)
Besonderheiten:
* Kein Keller, aber großer Nebenraum (ca. 23 m²) als "Kellerersatz" oder Ausbaureserve nutzbar,
Separate Außenzugangstür zum Technik-/Abstellraum.
* Möglichkeit zur Wohnflächenerweiterung durch Durchbruch ins angrenzende Zimmer
* Anschluss an zentrale Heizungsanlage im gegenüberliegenden Gebäudekomplex
Zielgruppenansprache:
Dieses Wohnhaus eignet sich ideal für:
* Eigennutzer, die ein bezugsfertiges Zuhause mit Erweiterungspotenzial suchen
* Kapitalanleger, die ein solides Wohnobjekt in wachsender Region mit gemeinsamer Versorgungstechnik (Pelletheizung, PV) und zukünftiger Entwicklungsperspektive erwerben möchten
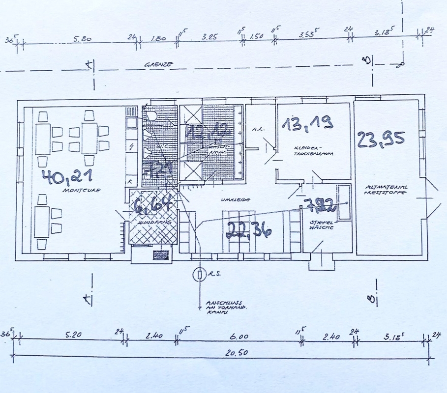
2) BAUABSCHNITT I - MEHRFAMILIENHAUS
Rechter Grundstücksteil – Bauabschnitt I (Baujahr. 1912-1980) mit Ferienwohnungen & Potenzial
Der erste Bauabschnitt auf der rechten Seite des Grundstücks umfasst ein charaktervolles, langgezogenes Bestandsgebäude aus dem Jahr 1912, das sich in vier bauliche Einheiten gliedert. Die Fläche wurde in den letzten Jahren intensiv genutzt und laufend modernisiert, unter anderem zur Vermietung an Monteure und Feriengäste.
Aktuelle Nutzung – Drei möblierte Ferienwohnungen:
Die Wohneinheiten sind 2025 vollständig renoviert, eingerichtet mit neuen Möbel, funktionsfähig und werden seit rund 12 Jahren erfolgreich als Monteurwohnungen vermietet. Die Vermietung kann auf Wunsch inkl. Mobiliar, Ausstattung und Mietverträgen übernommen werden – ein reibungsloser Übergang für Kapitalanleger ist somit gewährleistet.
*Insgesamte Wohnfläche 250 m²
Ferienwohnung 1 (Erdgeschoss):
* Bad mit 2 Duschen und zwei Waschbecken
* Bad mit 1 Waschbecken 2 mal WCs
* 1 Gemeinschaftsküche
* 8 Betten, komplett möbliert
Ferienwohnung 2 (1. Obergeschoss):
* Zwei Zimmer, Flur, Küche und Bad
* 6 Betten, voll ausgestattet
* Neu belegter Treppenhauszugang
* Großzügige Raumaufteilung
Ferienwohnung 3 (Dachgeschoss):
* 2 Zimmer, Flur, Küche und Bad ausgelegt für 5 Personen
Kein akuter Sanierungsbedarf
Dach aus dem Ursprungsjahr (nicht erneuert)
Ausstattung & Zustand:
* Fenster: Alle Fenster wurden vor ca. 10–11 Jahren erneuert (zweifach verglaste Kunststofffenster mit Rollläden)
* Allgemeinzustand: Laufend instand gehalten, gepflegte Nutzflächen, solide Ausstattung
* Versorgung: Über zentrale Heizungsanlage (Pellets) im angrenzenden Gebäudekomplex
Energieausweis
Bedarfsausweis
* Endenergiebedarf: 248,5 kWh/(m²·a)
* Energieeffizienzklasse: G
* Wesentlicher Energieträger: Holzpellets
* Baujahr Gebäude: 1971
3) BAUABSCHNITT II – Technik & Büroflächen mit zentraler Heizlösung
Der zweite Gebäudeteil auf der rechten Grundstücksseite vereint funktionale Büro- und Nutzflächen mit dem zentralen Heizungsraum, über den das gesamte Anwesen – einschließlich des Einfamilienhauses auf der linken Seite – beheizt wird.
* Raumaufteilung & Nutzung: Büroeinheit(e) – vielseitig nutzbar (Verwaltung, Co-Working, Lager)
* Separater Wirtschaftsraum
* Technikraum mit Pelletheizung (Baujahr 2019, Leistung für mehrere Wohneinheiten)
* 7-Tonnen-Pelletspeicher im Gebäude integriert
* Technik & Versorgung: Zentrale Pelletheizung aus 2019
* Alle Einheiten inkl. Wohnhaus linksseitig sind angeschlossen
Jahresverbrauch max. 14 Tonnen Pellets für das gesamte Ensemble
(bei ca. 314 €/Tonne – wirtschaftlich planbar)
Die Warmwasserbereitung erfolgt dezentral über Boiler in den jeweiligen Wohneinheiten
Beheizung erfolgt über klassische Heizkörper
Hinweis: Gebäude ist nicht isoliert
Fazit Bauabschnitt II:
Optimaler Technikstandort mit ergänzenden Nutzflächen – ideal für Eigentümer, die zentrale Haustechnik und Verwaltung kombinieren möchten. Auch für Umbau zu kleinen Wohneinheiten, Werkstatt oder Lager denkbar.
4) BAUABSCHNITT III – Großzügige Werkhalle mit Loft-Potenzial
Der dritte Bauabschnitt bietet eine beeindruckende Gewerbefläche mit großem Entwicklungspotenzial. Die rund 122 m² große Halle überzeugt durch ihre Raumhöhe und robuste Substanz – prädestiniert für kreative Umnutzung.
Eckdaten: Gesamtfläche: ca. 122 m²
Deckenhöhe: ca. 5,40 m bis zum Metallträger, Stabile Bauweise, gute Belichtung, breiter Zugang
Nutzungsmöglichkeiten: Werkstatt, Lager, Atelier oder Showroom
Umnutzung zu Loftwohnung oder Produktionsfläche möglich
Keine tragenden Einschränkungen – flexible Raumgestaltung
Direkt angrenzend befindet sich ein separater kleiner Abstellraum, der als Erweiterung oder Lagerreserve genutzt werden kann.
Fazit Bauabschnitt III:
Raum für Visionäre – ob als Werkstatt, Kreativfläche oder Wohneinheit mit industriellem Charme. Die Bausubstanz ist vorhanden, die Deckenhöhe beeindruckend – ideal für Nutzer mit Weitblick.
5) BAUSCHNITT IV – Einheit mit Gartenbezug und Unterkellerung
Der vierte Bauabschnitt bildet den hinteren Abschluss des langen Gebäudes und besteht aus mehreren kleineren Räumen – mit eigenem Zugang zum Gartenbereich.
Raumstruktur: Drei abgeschlossene Räume auf der rechten Seite
Eingangsbereich / Flurzone mit direkter Ausgangstür in den Garten
Teilweise unterkellert – ideal als Lager, Vorrats- oder Hobbykeller
Nutzungsmöglichkeiten:
Kleinbüro, Lager, Hobbyräume oder Ausbau zur Wohnung
Zugang zum Gartenbereich macht diesen Abschnitt besonders interessant für familienfreundliche Nutzung oder ruhige Rückzugsorte
-------------------------------------------
Zusätzlich befinden sich auf diesem Grundstücksteil:
* 1 Garage mit angebautem Nebenraum
* 3 Außenstellplätze
* Gepflasterte Terrasse (ca. 8 m², überdacht, Baujahr ca. 2016)
* Großzügig gepflasterter Hofbereich im Stil von Kopfsteinpflaster
Grundstückserweiterung: ca. 80 cm hinter dem Zaun gehören ebenfalls zum Grundstück – ideal für Gartennutzung oder gestalterische Ergänzungen
Der Bereich reicht bis zu Bestandsbäumen (Pflaume, Apfel, Birne, Nuss).
Hinweis:
Für das Nachbargrundstück besteht ein im Grundbuch eingetragenes Geh- und Fahrtrecht über den Hofbereich. Dieses dient dem Nachbarn zur Erreichung seiner Scheune sowie der dort befindlichen Garagen. Die Zuwegung ist dauerhaft gesichert und muss vom jeweiligen Eigentümer des Verkaufsobjektes respektiert werden.
Überzeugen Sie sich selbst von den vielfältigen Möglichkeiten dieser Immobilie – vereinbaren Sie noch heute Ihren Besichtigungstermin!
Sonstige Angaben:
Das Wohnhaus wird voraussichtlich nach Absprache bezugsfrei.Derzeit wird das Mehrfamilienhaus an Monteure vermietet. Es gibt jedoch keine festen Mietverträge. Die Einnahmen sind abhängig von der jeweiligen Auslastung und können daher variieren.
Weitere große Lagerflächen in den Objektanbauten können eigengenutzt oder vermietet werden.
Besichtigung & Interessentenvorauswahl:
Wir bitten um Verständnis, dass Besichtigungstermine nur mit vorliegender Interessentenqualifizierung vergeben werden können.
Bitte reichen Sie vorab folgende Unterlagen ein:
* Vollständige Kontaktdaten (Name, Anschrift, Telefon, E-Mail)
* Nachweis über vorhandenes Eigenkapital oder Finanzierungsbestätigung
* Kurze Angabe zur geplanten Nutzung (z. B. Eigennutzung, Kapitalanlage)
* Ggf. eine Bonitäts- oder Selbstauskunft
Diese Informationen ermöglichen eine zielgerichtete und effiziente Besichtigungsvorbereitung und helfen uns, ernsthafte Interessenten bevorzugt zu berücksichtigen.
Zusatzleistungen - auf Wunsch unterstützen wir Sie gerne bei:
* der Mietersuche
* der möblierten Vermarktung
* einer kostenfreien Wertermittlung für Ihre Immobilie
Maklerprovision:
Wir weisen darauf hin, dass beim Abschluss eines notariellen Kaufvertrags eine Käuferprovision in Höhe von 3,57 % inkl. gesetzl. MwSt. des Kaufpreises fällig wird.
Hinweis für Eigentümer & Tippgeber:
* Wir sind laufend auf der Suche nach Mehrfamilienhäusern mit 4 bis 12 Wohneinheiten oder mehr für unsere geprüften, qualifizierten Kapitalanleger.
* Wenn Sie selbst verkaufen möchten – oder jemanden kennen, der eine Immobilie veräußern will – freuen wir uns über Ihre Kontaktaufnahme.
* Tippgeber erhalten auf Wunsch eine faire Beteiligung.
Online-Präsenz
Weitere Informationen zu uns und unserem Immobilienangebot finden Sie online unter:
www.remax.de/coburg
Rechtliche Hinweise:
RE/MAX Immobilien Coburg ist ein rechtlich selbstständiges Unternehmen.
Jeder RE/MAX Franchise- und Lizenznehmer handelt eigenverantwortlich.
Alle Angaben in diesem Exposé basieren auf Informationen, die uns vom Eigentümer übermittelt wurden.
RE/MAX Immobilien Coburg sowie der beauftragte Makler übernehmen keine Haftung für die Richtigkeit, Vollständigkeit oder Aktualität dieser Angaben.
Irrtum und Zwischenverkauf bleiben vorbehalten.
Sie wollen mehr erfahren?
Wenn Sie uns eine Nachricht über das Kontaktformular senden, melden wir uns schnellstmöglich bei Ihnen:








