Charmantes Einfamilienhaus mit Potenzial und großem Garten in Neustadt bei Coburg
Beschreibung:
Willkommen in Ihrem neuen Zuhause – einer Immobilie mit Charme, viel Potenzial und einem großzügigen Grundstück in einer attraktiven Lage! Diese Immobilie bietet Ihnen die seltene Gelegenheit, ein Haus nach Ihren eigenen Vorstellungen zu gestalten und dabei von einer bereits genehmigten Erweiterung durch einen Wintergarten zu profitieren.Lagebeschreibung:
Das Einfamilienhaus in Neustadt b.Coburg "Am Moos" befindet sich in einer guten Wohnlage mit guter Besonnung und attraktiver Fernsicht.Einkaufsmöglichkeiten, Schulen, Kindergärten und öffentliche Verkehrsmittel sind in unmittelbarer Nähe und sorgen für eine hohe Lebensqualität. Neustadt bei Coburg ist bekannt für seine gute Anbindung an größere Städte, während es gleichzeitig den Charme einer Kleinstadt mit allen Annehmlichkeiten bietet.
Ausstattung:
Energieausweis:
- A+
- A
- B
- C
- D
- E
- F
- G
- H
- Baujahr:
- 1958
- Endenergieverbrauch:
- 376 kWh/(m²a)
- Energieausweis:
- Verbrauchsausweis
- Energieeffizienzklasse:
- H
- Energieausweis gültig bis:
- 14.06.2035
Ausstattungsbeschreibung:
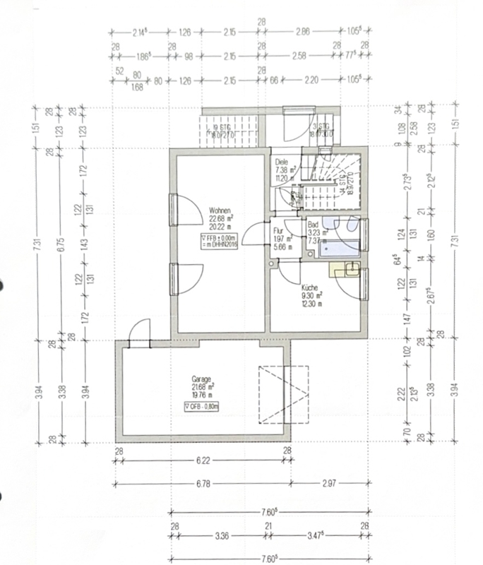
Das Haus wurde 1967 erbaut und befindet sich derzeit im Zustand einer Kernsanierung im Innenbereich. Dies bedeutet, dass die grundlegende Struktur des Hauses solide und die Außenfassade in gutem Zustand ist, während Sie im Inneren die Möglichkeit haben, die Räume nach Ihrem eigenen Geschmack und Bedarf zu gestalten.Raumaufteilung - Erdgeschoss (ca. 45 m² + 24m² geplanter Wintergarten):
* Wohnzimmer: 22,7 m²
* Küche: 9,3 m²
* Flur: 2,0 m²
* Diele: 7,4 m²
* Bad: 3,2 m²
Obergeschoss (ca. 45 m²):
* Zimmer 1: 9,9 m²
* Zimmer 2: 12,8 m²
* Zimmer 3: 9,4 m²
* Bad: 3,3 m²
* Flur: 9,6 m²
Die Gesamtgrundstücksfläche beträgt beeindruckende 650 m², wovon der Garten das Herzstück darstellt. Hier haben Sie genügend Platz für Freizeitaktivitäten, Gartengestaltung oder auch den Anbau eines Gemüsegartens.
Besonders hervorzuheben ist die geplante Erweiterung durch einen Wintergarten mit einer Größe von 24 m², der am Wohnzimmer angebracht wird. Eine entsprechende Genehmigung liegt bereits vor. Dieser Wintergarten wird nicht nur den Wohnraum erweitern, sondern auch eine lichtdurchflutete Oase schaffen, die Sie das ganze Jahr über genießen können.
Weitere Merkmale:
Das Haus ist vollunterkellert und bietet damit zusätzlichen Stauraum oder Potenzial für eine Hobbywerkstatt. Das Dach ist verschalt und in einem guten Zustand. Auf dem Grundstück befindet sich zudem ein praktisches Gartenhaus, das Ihnen zusätzlichen Stauraum oder einen Platz für Gartengeräte bietet. Eine Garage ist ebenfalls vorhanden, was Ihnen das Parken erleichtert und Ihr Fahrzeug schützt.
Fazit:
Diese Immobilie ist ein echtes Juwel für alle, die ein Zuhause mit Charakter und viel Potenzial suchen. Nutzen Sie die Gelegenheit, Ihre Wohnträume zu verwirklichen und eine Immobilie nach Ihren Vorstellungen zu gestalten. Die ruhige Lage, das großzügige Grundstück und die bereits geplante Erweiterung durch einen Wintergarten machen dieses Angebot einzigartig.
Zögern Sie nicht, uns für weitere Informationen oder einen Besichtigungstermin zu kontaktieren. Wir freuen uns darauf, Ihnen diese besondere Immobilie persönlich zu zeigen!
Sonstige Angaben:
Bei Interesse bitten wir Sie, uns Ihren vollständigen Namen, Ihre Telefonnummer sowie Ihre vollständige Anschrift zu hinterlassen, damit wir Ihre Anfrage bestmöglich bearbeiten und zeitnah mit Ihnen in Kontakt treten können.Alle Angaben in diesem Exposé basieren auf Informationen, die uns von den Auftraggebern zur Verfügung gestellt wurden. RE/MAX Immobilien Concept Coburg übernimmt keine Gewähr für die Vollständigkeit, Richtigkeit und Aktualität dieser Angaben.
Wir weisen darauf hin, dass bei Abschluss eines notariellen Kaufvertrages eine Käuferprovision in Höhe von 3,57% des Kaufpreises fällig wird. Diese Provision ist gesetzlich geregelt nach § 656c BGB.
Wir sind ständig auf der Suche nach Immobilien und Grundstücken für unsere Kunden. Falls Sie eine Immobilie verkaufen möchten oder jemanden kennen, der dies plant, kontaktieren Sie uns gerne als Tippgeber. Auch bieten wir Ihnen eine kostenfreie, qualifizierte Immobilienbewertung an. Vereinbaren Sie noch heute einen Termin!
Besuchen Sie uns auch online unter www.remax.de/coburg, um weitere Informationen zu unseren Angeboten und Dienstleistungen zu erhalten.
Sie wollen mehr erfahren?
Wenn Sie uns eine Nachricht über das Kontaktformular senden, melden wir uns schnellstmöglich bei Ihnen:







